ADU 483

ADU 483 Plan: 1 Bed, 1 Bath
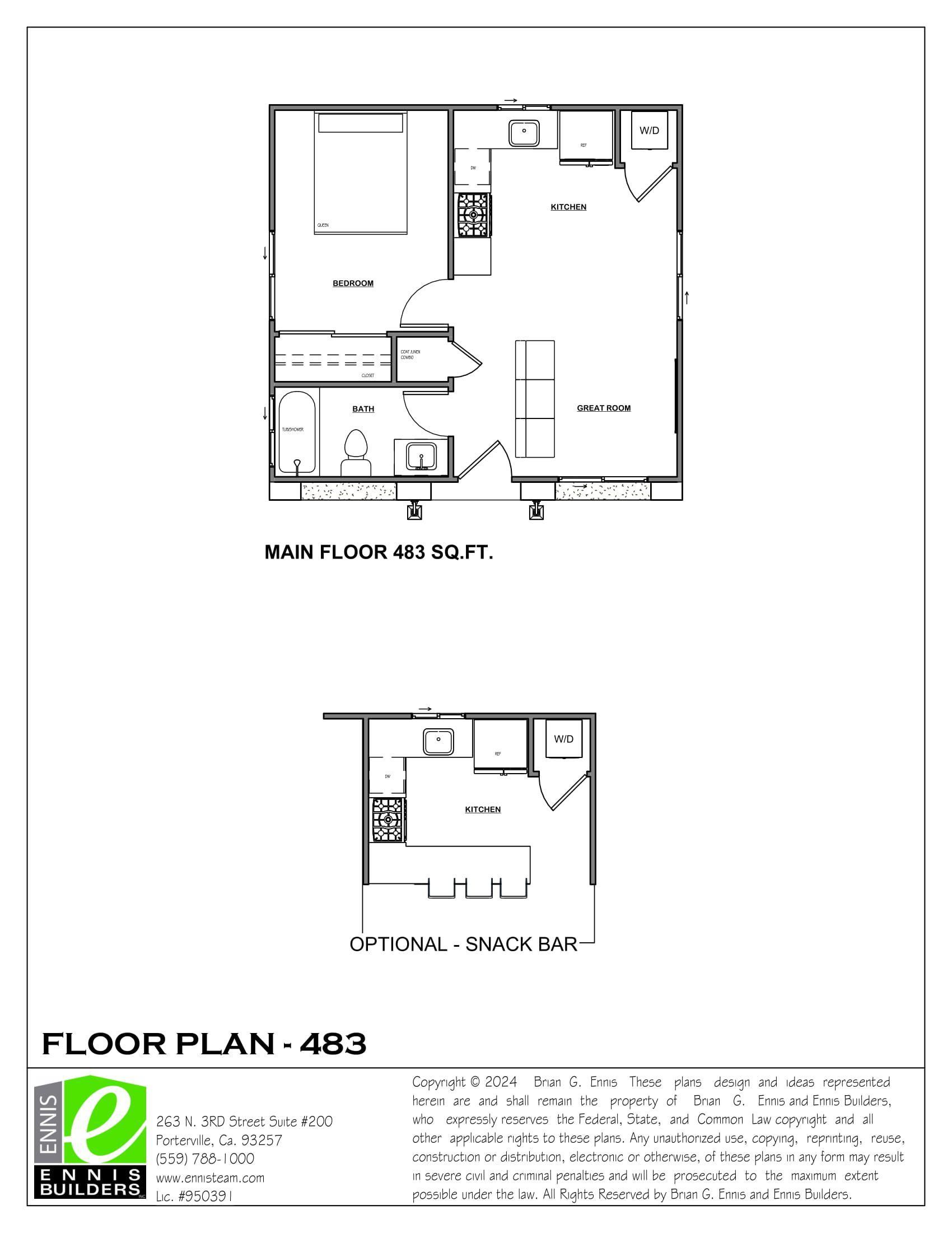
Introducing our thoughtfully designed 483 Plan that offers both style and spaciousness. The open-concept living creates a welcoming space perfect for relaxing or entertaining. Experience high-quality craftsmanship and efficient design tailored to meet diverse lifestyle needs. Prices start at $147,241.*
*Prices subject to change

2-D PLAN

ADU 483

3-D PLAN

ADU 483

3-D RENDERS

CRAFTSMAN
ADU 483
ADU 483
ADU 483
MODERN
ADU 483
ADU 483
Spanish
ADU 483
ADU 483
ADU 483